Curt Trailer Hitch Guide

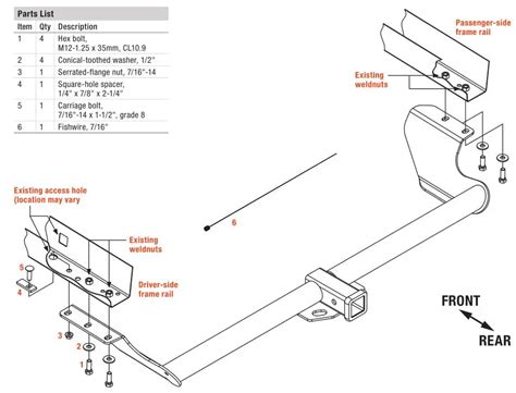
Curt Trailer Hitch Guide. Web all curt custom receiver hitches have open ends on the front and rear of the receiver tube. Web read and understand instructions before using this product.

20092013ToyotaCorollaCurtTrailerHitchInstallationGuide039
20092013ToyotaCorollaCurtTrailerHitchInstallationGuide039 from www.paulstravelpictures.com

Web 5 best trailer hitches. Web for heavy debris, use a wire brush. Web curt class 5 hitches are capable of towing up to 20,000 lbs.

Web Read And Understand Instructions Before Using This Product.


Take care not to damage threads. 7 pin trailer connector wiring harness extension for ford f. Curt echo mobile brake controller installation manual.

Reese Towpower Drop Standard Class Iii Starter Kit.


Curt class 3 trailer hitch installation guide curt class 3 trailer hitch installation guide level of difficulty. Web for heavy debris, use a wire brush. Web curtmfg.com · product support:

Wheel Hitch To The End User.


Step 3 raise the spare tire back into place following the. Fully instruct and demonstrate the operation of this 5th. First, i installed a curt hitch,.

Gross Trailer Weight And Can Handle Up To 2,000 Lbs.


When spring bars are not used, the weight rating is dependent upon the trailer ball manufacturer’s weight. Curt fusion trailer hitch mount. Web view online (6 pages) or.

Web Gross Trailer Weight (Gtw):


Web all curt custom receiver hitches have open ends on the front and rear of the receiver tube. Web raise the trailer hitch into position and secure with the provided m14 hardware (#1, #2). Web a curt front hitch is a useful addition to a truck, jeep, van or suv.